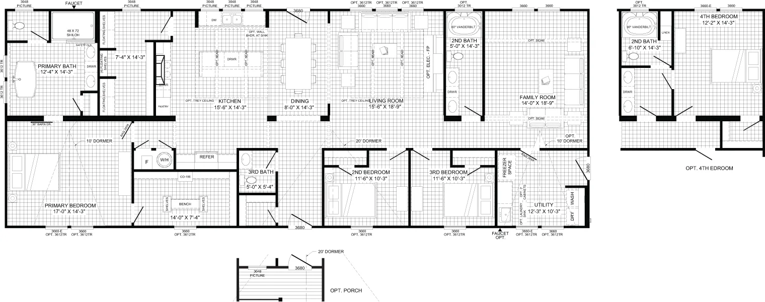
THE ROCKING CHAIR
Floor Plan
The Rocking Chair
BEFORE OPTIONS
3 beds
2 baths
2,400 sq. ft.
† Images may show options not included in base price
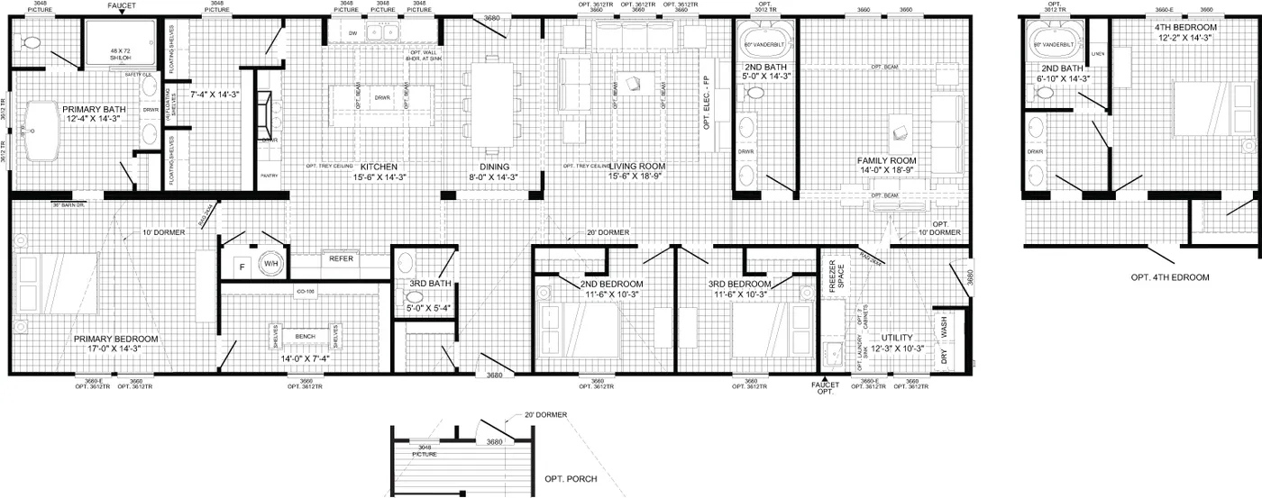
Floor Plan

We accept trades!
Find a new home you love? Contact us for more information about our trade-in requirements and to schedule your free trade evaluation.
Learn More
